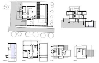
The building is located near the old town of Cracow, in the calm district of detached houses, on the hill with beautiful view of Wawel and the mountains. The investor’s idea was that the house should be as high as possible because of the beautiful view, and preserve spatial relations between all floors with the largest as possible opening of the space.
The building stands on the highest point of the street – distinguished by Its cubic form and smooth white elevations, it is the dominant culmination of the surrounding architecture. The shifting blocks are intended to reduce the relatively large optical cubature, whilst also reflecting the functional zones within the house. Read more [ via : architecturelover ]
.jpg)
.jpg)
+-+interior+home.jpg)
.jpg)


