The residential structure named Anti Patio House is composed of three containers that capture the essence of modern living. These three volumes were designed to perfectly adapt to the property – a hillside terrain oriented towards the East, defined by “a 10-15 km panoramic view characteristic of a penthouse” – as described by the creative minds behind this project.
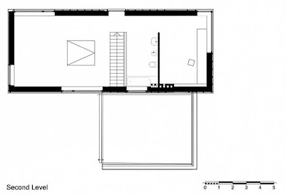
This contemporary home designed by Drozdov Partners is located in Kharkov, Ukraine, in a picturesque setting. A terraced property profile proved to be challenging, but the final result is a magnificent modern home made out of three 60 square meter containers each. The natural slope of the hillside allowed the architects to place two perpendicular containers on top of each other, while the third one sits separately and shelters the guest suite. The lower volume is occupied by the living spaces, while the upper one – resting on the slope – was risen to take advantage of the beautiful surroundings. A terrace wraps around two sides of the house, pierced by an inviting swimming pool and honestly open to the views, as are the social areas. Read more [ via : freshome ]
house plan
.jpg)
.jpg)
.jpg)
+-+interior+design.jpg)


.jpg)

